Kineki La Punta, un nuevo desarrollo residencial en Brisas de Zicatela, Puerto Escondido, en México, emerge como un referente de arquitectura sostenible en la costa de Oaxaca. Este proyecto de Amezcua, en colaboración con Mario Conde, fusiona diseño y sostenibilidad al integrar sistemas de captación y tratamiento de aguas, reciclaje y paisajismo con especies nativas.
Su estética, marcada por una fachada de fibrocemento negro con textura Shou Sugi Ban, busca una armonía orgánica con el entorno. Según el arquitecto Julio Amezcua, Kineki La Punta es un manifiesto que demuestra cómo la arquitectura puede coexistir de forma armónica con su emplazamiento natural, sin imponerse al paisaje.
Sostenibilidad y belleza natural
Un nuevo hito arquitectónico ha surgido en la costa del Pacífico mexicano: Kineki La Punta, un proyecto residencial ubicado en Brisas de Zicatela, Puerto Escondido, que fusiona diseño, sostenibilidad y belleza natural de forma ejemplar.
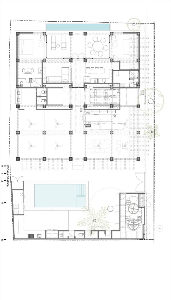
Fruto de más de una década de investigación y exploración creativa, Kineki La Punta es el proyecto más reciente de Amezcua, en colaboración con Mario Conde. El edificio fue construido en 18 meses y cuenta con 1,200 m² de construcción sobre un terreno de 600 m². Incluye doce suites de 60 m² y un departamento de 120 m², además de 480 m² destinados a áreas verdes y amenidades pensadas para fomentar una vida comunitaria y equilibrada.
Zona para yoga y pilates
Entre sus espacios destacan un área multifuncional de 120 m² adaptable como coworking, barra o zona para yoga y pilates, así como una alberca con área de asador. Estas amenidades refuerzan una visión de estilo de vida consciente, relajado y en contacto con el entorno.
Construido con madera maciza de pino tratado y muros de paneles de fibrocemento con núcleo de poliuretano, el edificio apuesta por materiales innovadores que garantizan durabilidad, eficiencia térmica y confort acústico. Su esquema en cruz evita que las suites compartan muros, lo que mejora la privacidad, ventilación y distribución.
Compromiso con la sostenibilidad
Uno de los aspectos clave del proyecto es su fuerte compromiso con la sostenibilidad. Kineki La Punta incorpora sistemas de captación de agua pluvial, reciclaje y tratamiento de aguas, así como un diseño de paisaje con especies nativas. Su fachada de fibrocemento negro con textura de madera evoca la técnica japonesa Shou Sugi Ban, aportando una estética orgánica y atemporal.
“Kineki La Punta es más que un edificio; es un manifiesto,” afirma el arquitecto Julio Amezcua. “Es la prueba de que la arquitectura puede habitar un lugar sin imponerse, coexistiendo de forma armónica con su entorno.”
Construcción industrializada
Kineki transforma la madera en un sistema constructivo versátil, diseñado para crear estructuras contemporáneas que se adaptan a diferentes contextos y escalas. Su enfoque modular permite combinar precisión digital, eficiencia en el montaje y una estética cálida y natural. A través de piezas prefabricadas y ensamblajes inteligentes, Kineki facilita procesos constructivos más sostenibles, rápidos y personalizables, impulsando una nueva manera de habitar y construir con madera.
”Estar en un espacio Kineki es como vivir en una receta que evoluciona con quien la habita. Se transforma para dar gusto, pero con simplicidad y funcionalidad. Es una forma de vida que comparte y te conecta con la naturaleza.” Beto Lanz – Fotógrafo e investigador gastronómico
Ficha técnica:
- Kineki La Punta.
- Arquitectura: Amezcua.
- Localización: Brisas de Zicatela, Puerto Escondido; México
- Superficie construida: 1,200 m²
- Superficie de parcela: 600 m²
- Colaboradores: Mario Conde
- Fotografía: Jaime Navarro.




